The Meadows, Moyness Road, Auldearn, Nairn, IV12 5JZ
£450,000
Offers Over - Under Offer
Under Offer
Property Features
- Fantastic lifestyle opportunity.
- Lucrative income potential.
- 1.7 acres of land.
- Beautiful secluded semi-rural setting.
- 3 holiday chalets included.
Property Summary
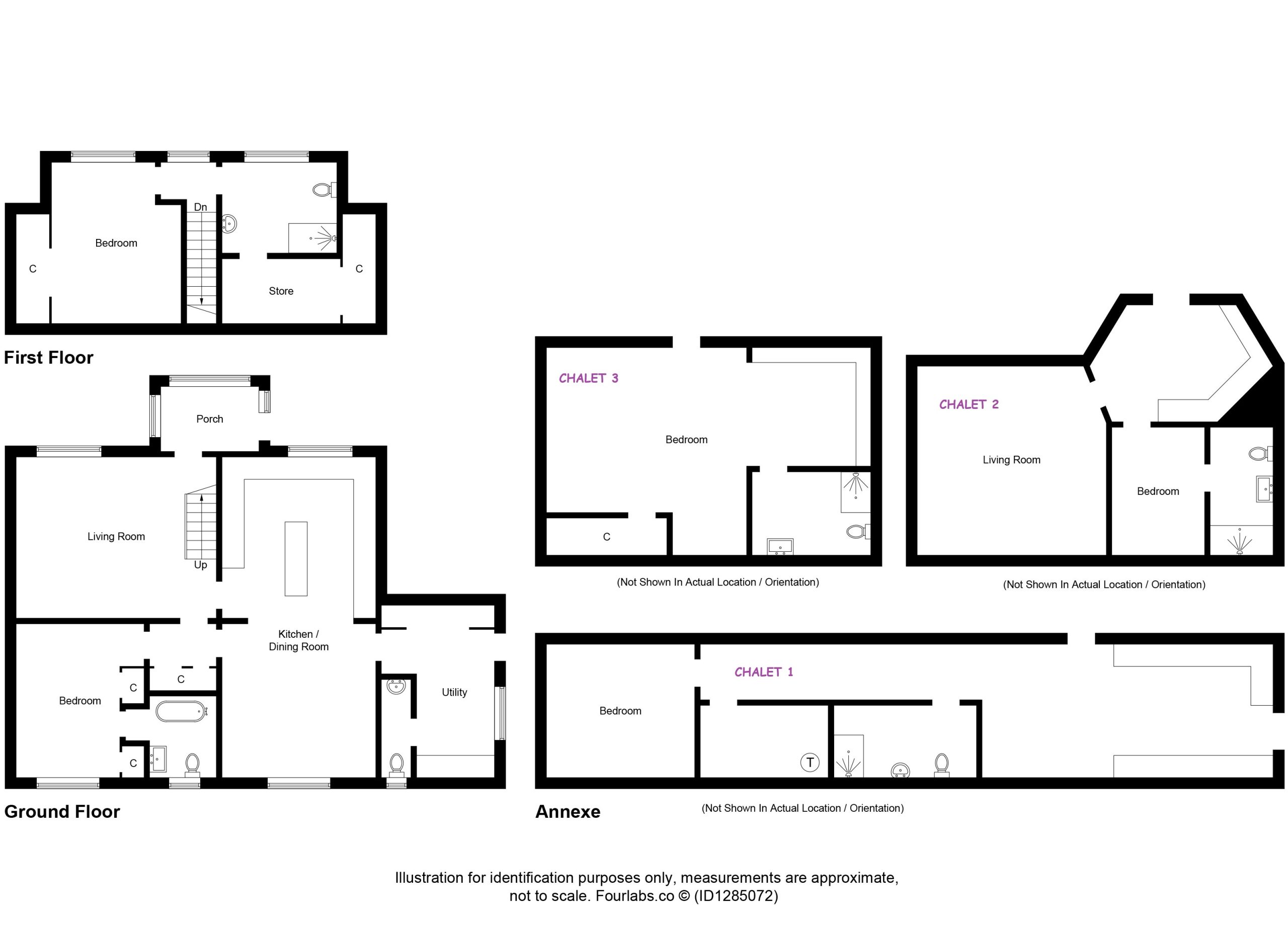
The Meadows is a rare lifestyle opportunity combining a charming traditional cottage with 3 spacious holiday chalets in a wonderfully private semi‑rural setting.Set within approx. 1.7 acre plot on the edge of Auldearn, and just two miles from the seaside town of Nairn, The Meadows offers a wonderful home with space, tranquillity and excellent income potential.
This beautifully presented traditional two‑bedroom cottage comes with three spacious one‑bedroom holiday chalets, a greenhouse, a boiler house, a double carport with EV charger, and ample additional gravel parking.
The property enjoys exceptional privacy, a long tarmac driveway creating an impressive approach, and wonderful outdoor space with established lawns and garden areas. The extensive front lawn is delightfully maintained by a robotic auto mower (Gnasher !) which is included in the sale.
The cottage itself is warm, inviting and thoughtfully designed for modern living.
A practical boot room and utility area with excellent storage lead into a cloakroom with WC and wash hand basin.
The open‑plan kitchen and dining room is a standout feature, fitted with attractive cream units, oak worktops, a combination oven, a conventional oven, dishwasher, full-height fridge and freezer, electric hob and a central island that makes an ideal focal point for family gatherings.
The layout flows beautifully through to a comfortable lounge with its feature fireplace and cast iron electric stove, and then into a sunroom which faces south and opens onto the garden and patio. Also on the ground floor, lies a generous double bedroom with excellent storage and a well-appointed en‑suite shower room.
Upstairs, a further double bedroom with views over the grounds, is complemented by another stylish shower room and a walk‑in wardrobe, creating an excellent private retreat on the first floor.
The three holiday chalets are of an impressive size, and finished to a high standard offering all the expected comforts of a home‑from‑home, with modern kitchens and bathrooms, separate living areas, parking, and modern heating systems, ensuring all one’s needs are met whilst on holiday. Their versatility opens possibilities for continued holiday letting, supported by strong evidence of regular and repeat custom, or for use as multi‑generational living accommodation. CCTV is also installed for your added reassurance.
An exciting additional benefit is the planning permission already in place to extend the cottage to four bedrooms. Full details can be viewed on the Highland Council website under reference 24/01674/FUL, and plans are available to view through the selling agents. There may also be potential for an additional development site within the grounds, subject to planning.
With its combination of tranquillity, space, income potential and beautifully presented accommodation, The Meadows is an exceptional property offering a truly unique lifestyle in a desirable location.
Approx dimensions
Cottage
Boot room 2.91m x 1.78m
Dining room 4.17m x 3.58m
Kitchen 4.25m x 3.80m
Lounge 5.50m x 4.24m
Bedroom 1 4.15m x 3.60m
En suite 2.49m x 1.86m
Sun room 2.20m x 1.34m
Bedroom 2 3.55m x 3.13m
Shower room 2.88m x 2.25m
Chalet 1
Kitchen 3.99m x 3.60m
Lounge 3.74m x 3.60m
Shower room 2.90m x 2.55m
Bedroom 4.00m x 3.43m
Chalet 2
Kitchen/dining 5.62m x 3.35m
Lounge 5.09m x 4.85m
Bedroom 3.43m x 2.02m
Shower room 1.86m x 2.05m
Chalet 3
Lounge/kitchen/bed area 8.74 x 4.08m
Shower room 2.34m x 2.00m






























































































